Logo Loïc Muriel

Loïc MURIEL

LP

Maison individuelle préfabriquée

Bormes les Mimozas, (83) Var, FR

décembre 2005

pour Maître d'ouvrage privé

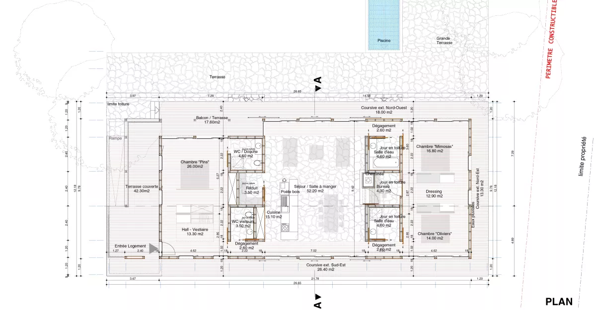
Projet de réalisation d’un pavillon individuel léger/préfabriqué (CH) et déposé sur site (F).

Le pavillon offre un logement d’environ 150m2 avec studio attenant. Il peut s’utiliser de manière indépendante et/ou se réunir pour augmenter la surface habitable et ne faire qu’un.

L’ensemble se situant sur le plis d’une parcelle isolée comprenant d’une part des oliviers parsemés de lavande, et d’autre part plusieurs arbres remarquables, tels que Pins, Oliviers, Eucalyptus, Cyprès...