Logo Loïc Muriel

Loïc MURIEL

HG BIS

Aménagement de surfaces administratives et d'accueil

Jonction, Genève

septembre 2023

pour Hospice général, Genève

avec Pauline Duvillard _ Collaboratrice

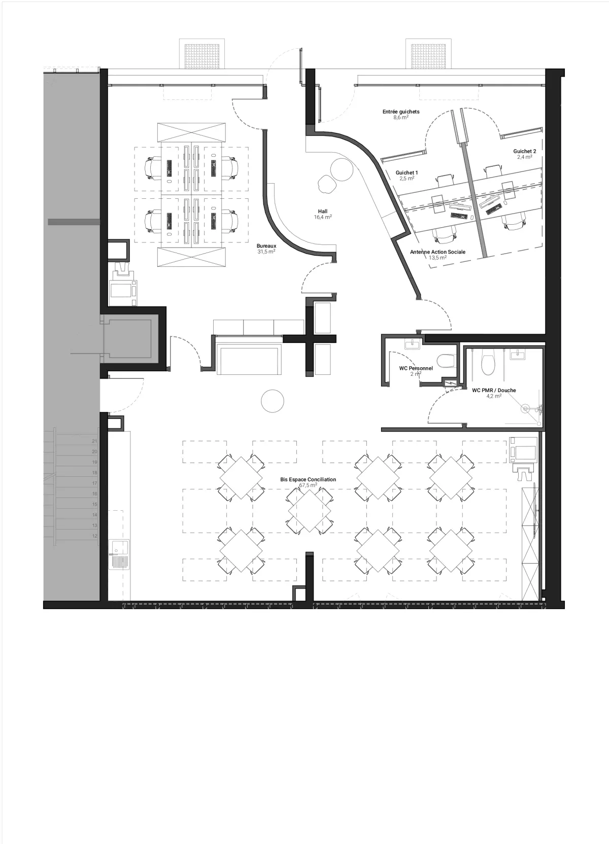
Projections et réalisation rapide d’un espace d’accueil et d’entretiens pour l’hospice général et le département de la cohésion sociale.

Les espaces se composent d’une salle d’entretiens ou de conférences, d’une surface administrative pour 4 collaborateurs, ainsi que deux guichets d'accueil. L’espace guichet se réalise tel un meuble en glissant entre les murs et le plafond.

Les locaux restent largement ouverts assurant une ventilation naturelle des espaces.