Logo Loïc Muriel

Loïc MURIEL

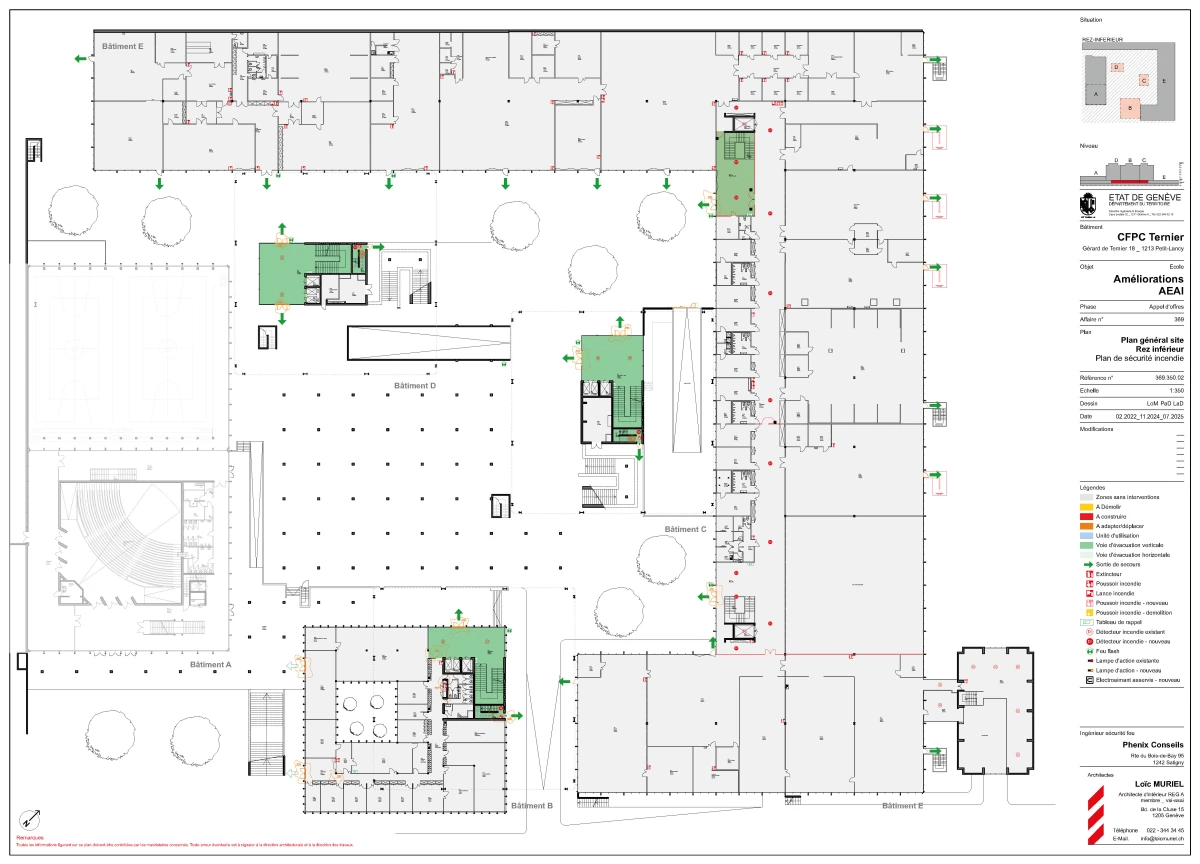
CFPC Ternier [en cours]

Améliorations AEAI du Centre de Formation Professionnelle Construction, Ternier

Petit-Lancy, Genève

janvier 2021

pour République et Canton de Genève _ Office cantonal des bâtiments _ Direction de l'Ingénerie et de l'Energie _ SIS

avec Laettia Dugourd, Pauline Duvillard _ Collaboratrices / SRG engineering & Phénix conseils, CTHO

Les améliorations AEAI concernées se déploient sur ± 58'000 m2 de l’ensemble du site, et concerne essentiellement le compartimentage de voie de fuite verticales des 3 tours principales, comportant 7 niveaux (+6 à ±0 sup.). Plusieurs portes menant à l’extérieur, ou venant des niveaux inférieurs -1, ±0 inf., et ±0 sup. sont également à prendre en considération.

Plusieurs locaux de la façade Nord Est _ rez de chaussée ne permettent pas une évacuation optimale des lieux. Aussi, un dispositif d’escalier ou de coursive extérieures est envisagé. Des contrôles de compartimentage et d'obturations des secteurs doit être effectué.

Plusieurs hypothèses se laissent entrevoir, et des séances de coordination et concertation avec les autorités, le département de l'instruction publique, en vue de l’établissement d’une demande d'autorisation de construire.

Des intentions de projections in situ sont dévellopées (p.ex. Exutoire de fumées en attique, cage escalier, Compartimentage, Aula/Cafétéria, dispositif Escalier/Coursive, ...).