Logo Loïc Muriel

Loïc MURIEL

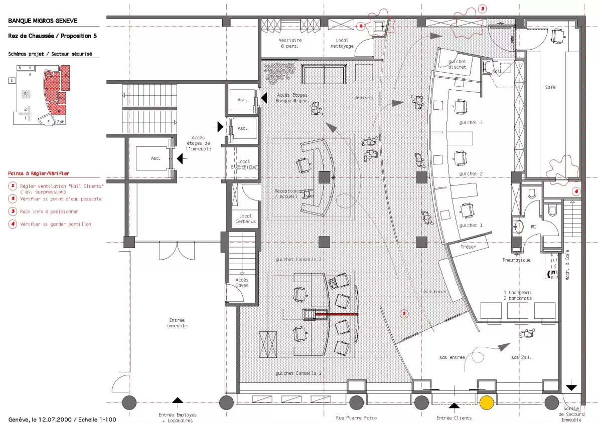
BMG

Banque Migros

Rive, Genève

octobre 2001

avec Claude Duccini Architecte d'intérieur

Projet de réhabilitation du siège administratif de Genève pour 130 collaborateurs, salles de réunions, cafétéria d’étages, aménagement d’une zone de 10 guichets conseils, et de l’agence bancaire du rez de chaussée, avec accueil, guichets…